欢迎来到佰伽广州站!




新港宝典正版资料库
新港宝典正版资料库

案例 | 狭窄小户型华丽变身,开启北欧生活

2020-09-07 新港宝典正版资料库
小管家说:

一个对装修有自己独到见解、对品质有严格追求的三口之家,在年初,为了学位购置了一套二手的两房。

房子位于广州市番禺区,约70㎡,客户的预算是22万,包含硬装和软装

这套房子在户型格局上存在一定的“硬伤”,我们的团队需要在不超出他们预算的情况下,对房子进行翻新,再通过配上定制的家具来突出主人的品味,让简单的房子档次瞬间提升起来。


装修前后对比,一睹为快



来听听客户怎么说


我们算是传说中的“刚需用户”,在筛选了一段时间过后,年初敲定了番禺的一套小两房。房子有一定的年纪,于是我们又再次陷入选择困难症——室内装修哪家强?


对于一个外行人,总听说装修水很深,无奈亲戚朋友没有相关的资源介绍,我们只能自己跑几家附近的门店和品牌体验店。我先生是个比较注重品质的人,一方面不放心把装修这么重要的事情轻易交给小承包商,另一方面,定制家装让我们很是心动,在网上看见泥巴公社专做旧屋翻新,我们挺感兴趣的。


但我们已经买了地铁附近的学位房,留在装修上的预算并不多。在“有没有必要花大钱搞装修”和“能让自己住得舒服一点”的天平上纠结着,我们迟迟没有拍板。



 
 
 
   偶然的一次安利,打开了我们新世界的大门。


在一次例行的房子交接时,跟前业主聊到这个话题,热心的前业主给我们推荐他之前合作过的装修公司——佰伽建筑,设计师拥有国家甲级建筑设计院资历,商家也有着十多年住宅小区设计的专业经验,重要的是价格也在我们的预算范围内。


突然听到这样一波安利,我们出于本能地怀疑。网络上泥巴公社的宣传比较多,好像更可靠一些,不过嘛,多个备选项也不错。我们就在网上搜索了佰伽建筑的联系方式,决定前往“实地考察”。


门店都装修得很有格调


根据此前的经验,我们已经做好了被各种推销的准备,但没想到,在还没确定合作的情况,他们就给了我们很详细的专业建议,告诉我们硬装可以怎么做,怎么重新布局让空间更好地利用,软装部分适合放一些这样什么等等,还给我们分享了不少案例作为参考。


虽说设计师提出的理念很贴合我们的要求,但我们是这么轻易被些许甜头就忽悠的人吗?


回家之后,我们又想尽办法去了解这家公司,百度、大众点评甚至知乎。专业资质就不多说了,搜集结果显示——简单概括就是,看似不显山露水,低调中却通过硬实力积累了良好的口碑,是一家能满足硬装和全屋定制家具需求的一站式装修公司。


就这么愉快地决定了!



 
 
 
   走心设计,弥补户型缺陷。


很多人都说,确定合作之后,顾客与装修公司之间的“恶战”才刚刚开始,第一战就是设计图。


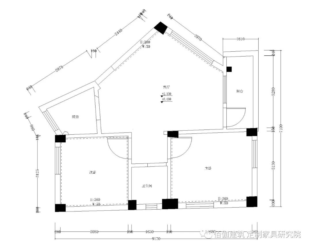
户型图


对自己的家我们有着很多的想法,我的想法更是零零散散,突然又冒出一个新的,把上一个想法全部推翻。在选风格的时候,我们就“磨”了好久。


我们的房子是东南向的,有个比较尴尬的地方,厅和厨房不是常规那种方方正正,还连着阳台和窗户,一进门感觉怎么摆都很局促。设计师给我们的第一次方案,把能利用的边角位置都利用起来了,让大厅的空间得到充分利用,显得更加宽阔。


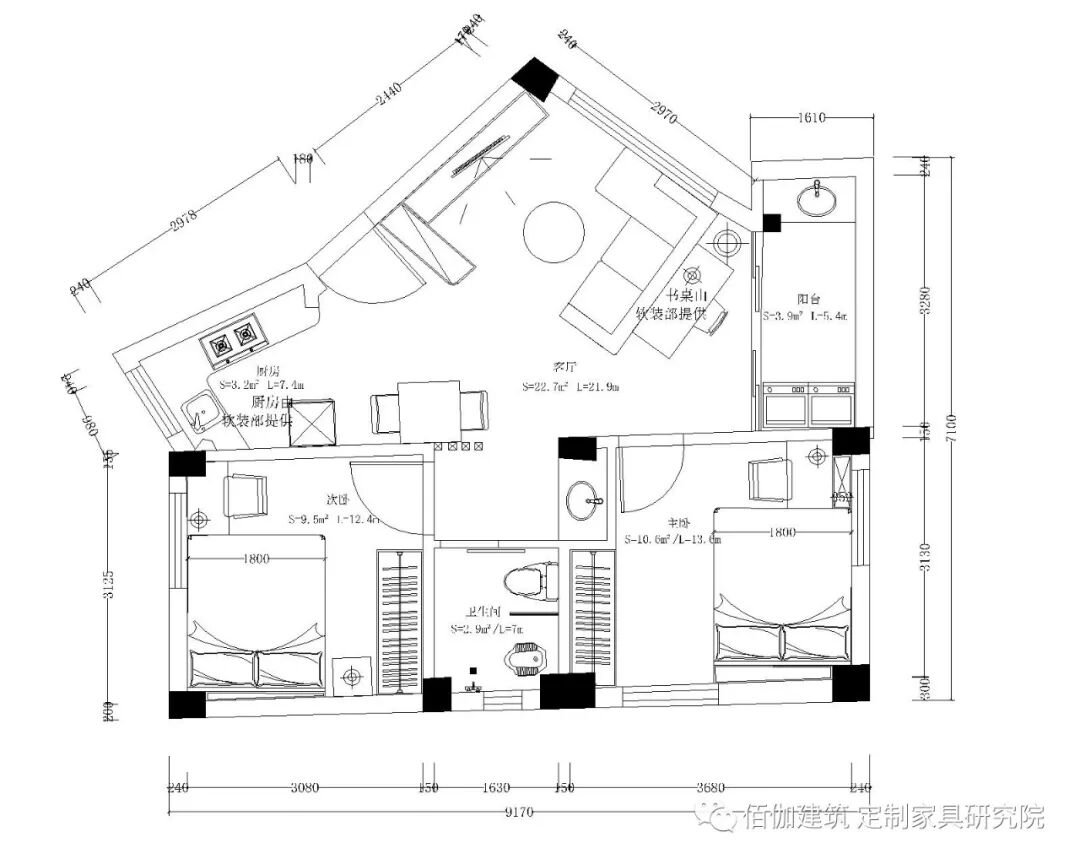
设计方案第一稿


看得出来,他们花了不少心思去研究细节,可是我们不太习惯电视机对着窗户,再加上我们希望靠墙摆放,第一稿宣告失败,打回重改。面对我们对每一个家具的位置都要纠结的情况,他们用耐心和专业,按着我们的“突发奇想”又修改了几次设计图,必须为佰伽建筑的专业素养以及服务态度点666个赞。


还有个小插曲,4月我们跟佰伽建筑签订合同,5月泥巴公社宣布倒闭,好多人赔偿无门,幸好幸好!


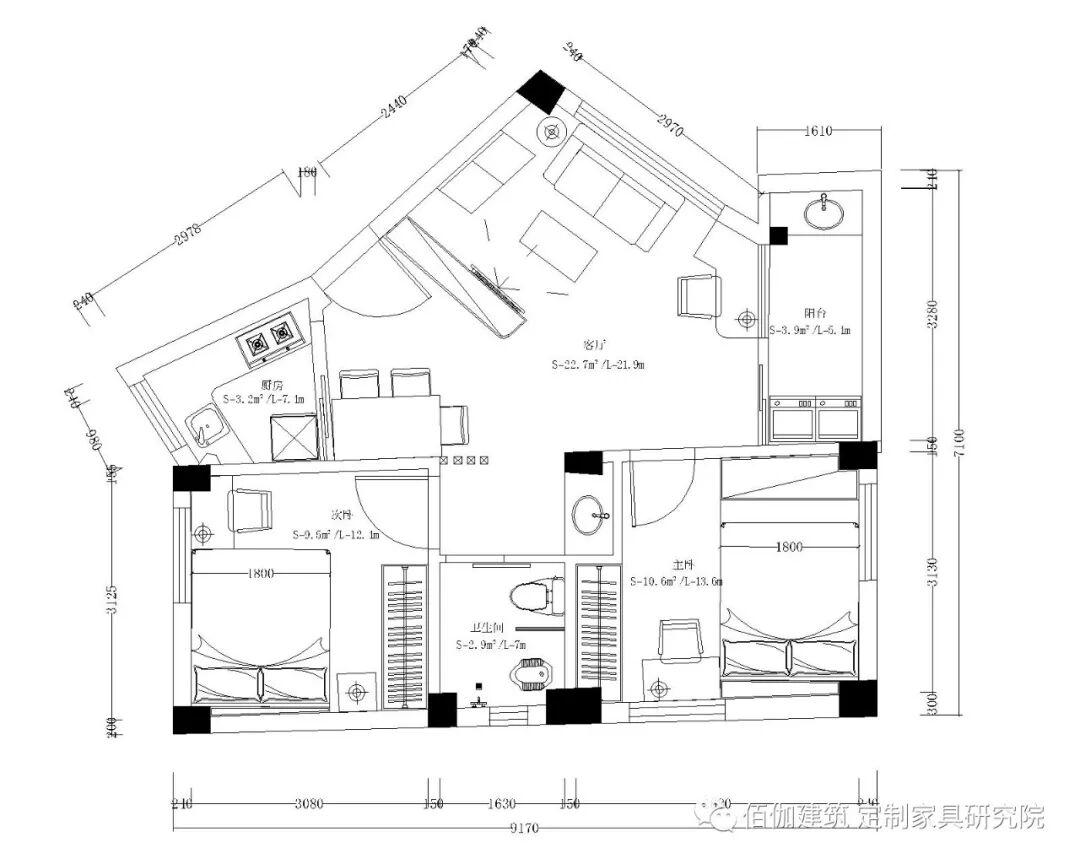
最终,敞开式厨房让我们就餐区的舒适有了实现的可能,沙发位置背后的折叠书柜书桌,先生和孩子的电脑桌和阅读区都有了,这么小的空间我们原本没有奢望,但通过这种设计,使得书桌不用时还可以收进书柜里,给孩子多一点活动空间,也是很走心了。


设计方案最终稿


卫生间位置本来不大,为了照顾老人和小盆友,先生后来提出要多装一个蹲便的想法,于是设计师把原本对开的房间门之间的过道也利用起来了,洗手盆挪到了过道,主卧室房间门改到客厅墙面。如此一来,整个空间的利用率大大提升了



 
 
 
   主动负责,耐心严谨,双击666。


在硬装工程中,最大的工程还是属于铺地板以及瓷砖,我们很明确地提出了“安全至上”,材质要尽量无甲醛。


本来我先生想要在大厅和卧室都铺木地板,但是我坚持至少大厅要铺地砖。就在我们意见无法统一的时刻,到现场监工的佰伽建筑工程师以专业见识解决了我和先生之间的冲突。他说,瓷砖可以更好地避免甲醛危害,还较为耐用、易保养、易维修,最终说服了我先生。


另外就是卫生间的改造,原本墙壁的瓷砖选的是深蓝浅蓝相接的,但实际出效果图的时候发现不是很搭,后来都改成浅蓝色。地板有个花纹拼接图案我自己选了一个比较花俏一点,我以为他们不想重新出设计图和价格方案,会拒绝我的修改。没想到,设计师只是提出了为了配个整体风格,建议选用简洁设计的建议,并在我很明确地表示了自己的想法之后,很耐心地配合我们的改动



随后,重新购买装修材料的过程中,负责我们这个项目采购的陈工全程带着我现场挑货、验货、下订。


来到软装工程方面,榻榻米床、衣柜、橱柜、电视柜、鞋柜、浴室柜等等,这一些我们都是需要定制的。


原本,在定制家具的木板上,我们很想选国外名牌的,无奈价格只可远观。在和我们详细探讨了之后,佰伽建筑工作人员为我们分析了各种家具板材的性能、环保等级,从性价比的角度给出了很多的专业建议。


最终,我们决定改用国产的多层实木板。说起来,定制家具和软装也算是佰伽建筑的核心优势之一,材料都是一线品牌供应商,值得信赖,做出来的成品基本还原了我们的想法工艺也很精湛


在实际布置的过程中,佰伽建筑也主动提出要对原来的规划进行修改,比如把之前预设的电视墙柜、壁柜去掉,避免空间显得压抑,比如根据我们房子的特点增加一些转角小书柜、隔板等等,增强收纳功能,方便实用。



有些设计改起来,说是“牵一发而动全身”也是毫不夸张,很繁琐很麻烦,但设计师为此还在国庆假期加班修改,让我都觉得有点不好意思了。


目前房子装修临近尾声,佰伽建筑还给我们的家电按照实际尺寸和安装需要进行了位置空间预留,就连安装电器所需的保护层也已经提前铺设好,这些细节真的很走心。




 
 
 
   老房子华丽变身,满满都是惊喜。


最后说一下心得,真的是装过一次才知道,家装是这么一个产业链牵涉很长很广的行业,大到地板瓷砖,小到一颗螺丝钉,丝毫都马虎不得,对于其他十几种建材还提供了国内外能保障质量的一线品牌供我们选择。所以说,这非常考验一个家装品牌在这个产业链中的沉淀以及资源,得有多少的优质品牌合作供应商,才能撑得起他们高品质的服务啊!非常庆幸这次,我选对了!

 

以下是房子变身过程,供大家参考:


01

改造前

 
 

(向左滑动查看更多图片)


02

改造过程

 
 

(向左滑动查看更多图片)


03

改造效果

(向左滑动查看更多图片)



这个工程正在紧锣密鼓的最后施工阶段,

有装修需求,或想要到现场了解的朋友,

欢迎联系小管家预约时间~

微信号:18825037793

新港宝典正版资料库 服务热线
18825037793(微信同号)
返回顶部 返回顶部