欢迎来到佰伽广州站!




新港宝典正版资料库
新港宝典正版资料库

过年回乡盖别墅,这样的气派别墅,绝对闪耀全村!

2021-01-24 新港宝典正版资料库
图片


图片


图片


图片


     图片


                                   

01

案例信息


坐标:北京郊区农村 

工期:1年

面积:红线内用地总面积550平米,

          房屋建筑面积280平米,

          园林场地面积270平米。

费用:基础、结构、屋面、水电、简单装修,

         大包价大约65万,室外大约30万,各种杂项8万。

更多案例/


如果对外装修、园林这些做进一步简化,


65万建一个200~300平米的小别墅


是完全可以做到的。


至于个性,要看自己的喜好和审美,


设计师的设计水平,


以及关键一点:能否坚持初衷,


顶得住家里老人和邻居们以及


施工队老师傅们的传统思维了~


图片


左边是SU方案图,右边实景拍摄图,


完成度90%以上


风格上,中式三合院为基础,


内外走廊、大客厅加中西厨的度假房布局,


外立面也是北方传统正房厢房基础上


结合了度假酒店装饰元素。


图片


图片


这是村里环境,典型的北方农村,


都是传统的双坡屋面或者简易平屋面砖房,


大家都差不多,极少见到有个性的住宅。


02

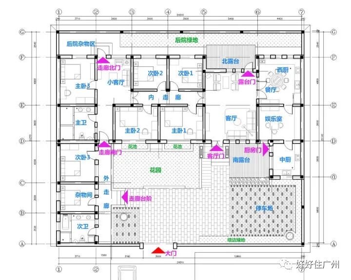
风水与布局

图片

北方村里按照当地传统三合院布局,


尽量遵循了当地风俗风水习惯,


并结合场地周边道路及房屋现状,


设计了这个方案。


设计中顾及到的风水讲究有:


1、正房比东厢房高,东厢房比西厢房高;


院内地势东高西低; 


2、卫生间放在西南角,厨房放在东南角;


3、按规矩大门应该在偏东南,但由于院外条件所限,


妥协放在偏西南,然后用影壁墙弥补;

图片

4、大门对面设置了影壁墙,形式上采用了镂空,


避免小院进深不够带来的压抑感;


5、室内客厅大门对面不设门窗,避免穿堂忌讳;


6、所有房间开门位置错开,走廊尽端对实体墙面不对门;


7、污水井避免对门口和走道。


总之风水禁忌尽量避免,


设计过程需要照顾的问题还是蛮多的。


另外结构上,根据建筑特点,


西厢房与正房基础到屋面结构完全脱离,


双梁双柱,设置了变形缝,避免不均匀沉降。


图片

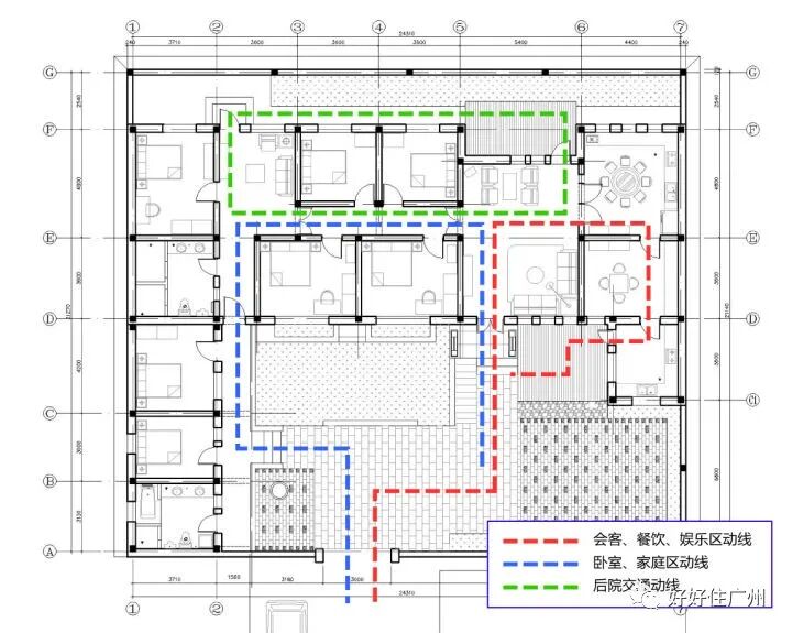
很简单明晰的布局,


正房右边客厅餐厅中西厨房等公共空间,


左边卧室,厢房作为临时客房及储物间,


前后院布局可以保证充分的通风采光。



03

外观造型

图片
图片


村里基本都是平房,宅基地面积还比较大,


就做了平房,


造型方面考虑到将来有加建二层可能性,


所以采用了平屋面,构造柱预留钢筋延伸至女儿墙;


客厅局部采用了坡屋面以丰富立面造型。

图片
图片


立面用了很多竖向长条窗,


有一些度假酒店建筑造型,


高大进深采光效果并增加周末度假氛围。


图片


图片


正对大门设置了影壁墙,


镂空木格栅形式,兼顾风水及视线~


屋脊造型后期实现过程中进行了简化。


前院为了院内停车需求,场地大面积硬化,


围墙边及影壁墙后留了局部绿地。

图片


图片


图片


图片


入口采用了无障碍设计,方便老年人。


前后都设了防腐木平台,


平台与停车场是用水池分隔。


原本设计是做草坪、小树,


业主家里人说,前院栽花,后院种菜,


草坪修剪麻烦所以取消。


图片


图片


厢房走廊,开放式。


图片

图片


图片


后院局部,也用了防腐木平台


图片


外观总体就是这样。



04

结构和庭院


结构方面,考虑到农村施工队水平,


采用了砖混结构,基本按照抗震设计做法,


圈梁构造柱、现浇屋面。


条形基础垫层


图片

砖砌基础


图片

抗震体系


图片

基础及结构体系剖面

图片

施工现场

图片

标准砖混结构


图片

图片
图片

入口雨罩为了简便施工,做了二次钢结构


图片

坡屋面用钢结构搭建,封竹胶模板,


然后做SBS防水,然后粘贴油毡瓦。


图片

图片


墙面局部做的陶粒仿石材装饰,丰富一下细节~



图片


防腐木,在北方最好每年刷一层木蜡油保护一下。


图片


图片

主卧室窗外的小花池,以后开窗就闻到花香~


图片

油毡瓦~~


图片

院外平整后能停4辆车~~



图片


图片


图片


图片


图片


无障碍坡道与花池挡土墙相结合,


这个坡道得到众多围观村民赞赏,


非常实用方便而且好看!


图片


院子里能轻松停三辆车,


所以,绿地面积比较小了,


不过小院里停车洗车啥的又安全又方便。


图片


黄土地,还没种花,


业主计划影壁墙背面种一排藤本月季、蔷薇啥的~


图片


厢房外走廊。


图片


遮阳伞底座用花岗岩石板压住,


然后覆盖一层白卵石,简直完美!


远看伞柄就像直接浇筑在地面一样,


当初留的卵石池子还是很明智的图片


图片


后院

图片


图片


图片


05

夜景和景观小品


图片


夜景,还没装庭院灯,


暂时靠走廊和雨罩吸顶灯倒是也蛮亮的~


图片



图片

景观小品

图片


图片


图片


图片


图片



06

室内


考虑到只是节假日或者探亲来住和经济实用,


室内一切从简,可以说就是没有设计,


够用好用省钱为原则,四白落地,


家居展厅淘换了一些便宜样品家具,


淘宝和宜家配了点小件,完全无视风格搭配。


图片


图片


图片


图片


图片


西厨兼餐厅

图片


中厨

图片


室内施工过程

图片

屋里做了地暖管线。


图片


总之,这一年,因为疫情断断续续,


几乎没过一个完整周末,


各种假期包括全部年假几乎也都呆在工地上了,


盖房好累!但成就感也是很大,


方圆十公里内的建材市场跑得非常熟悉,


哪里卖水泥,哪里卖粘接剂、石材、密封胶,


哪里卖五金配件都门儿清了......


因为受到业主好评和点赞,


公司让年底总结一下,看了现场照片和

对比方案图完成度还不错~人间值得图片


下面是完成现场和方案图对比:

图片


图片


图片


图片

图片

图片



图片


图片


方案模型




图片
图片
图片
新港宝典正版资料库 服务热线
18825037793(微信同号)
返回顶部 返回顶部